Aanvullingen en correcties zijn welkom.
Een neerlaatbare schroef
Naar aanleiding van vragen betreffende het mvs Louisa (
fotoserie) verscheen op
kustvaartforum.com een verhaal van de hand van Theo Janssen dat hier in iets aangepaste vorm verschijnt.
Waar nodig is het verhaal aangevuld en bijgewerkt aan de hand van opmerkingen van andere forumbezoekers of gegevens uit andere bronnen.
De tekeningen zijn zuiver schematisch en representeren niet de werkelijkheid.
Het sleepschip Louisa werd in 1969 bij scheepswerf Oldenhage te Lisserbroek gemotoriseerd en met dit systeem uitgerust.

De Louisa, voortgestuwd met de op diepte instelbare schroef, varend te Brugge.
Foto: Frederic Logghe, Brugge. (
groter formaat)
De plaatsing van de
scheepsschroef is bijna altijd een compromis.
Bij vrachtschepen wilt men liever niet dat de schroef onder het schip uitsteekt; het maakt de schroef kwetsbaar en men heeft meer
diepgang zonder dat men er
laadvermogen voor terugkrijgt. Tevens is het ongewenst dat de schroef hoger geplaatst wordt dan strikt noodzakelijk is; het rendement van de schroef is lager naar mate deze dichter bij het wateroppervlak haar werk doet en de toevloed van het water door de scheepsromp gehinderd wordt. Dit geldt in nog veel sterkere mate wanneer de schroef in haar 'achteruit' gezet wordt.
Zijschroef-schipper Bernard Janssen bedacht een oplossing voor dit probleem toen rond 1959 de
zijschroef-installatie op de
klipper Jolles versleten raakte en bovendien te weinig vermogen had om nog "mee" te kunnen komen. Een groot voordeel van een zijschroef is de goede "achteruit". Met een motor achterin, zeker een lichte DAF (slechts 100pk voor een schip van ca. 350 ton) voorzag hij bij een normale inbouw, waarbij de schroef niet onder het
vlak uitsteekt, problemen. Even kwam een Schottel Navigator (
roerpropeller) in beeld maar deze keuze verviel toen hij er achter kwam dat het schip stuurloos zou zijn als de motor uitviel.
Het idee voor een schroef die op en neer kon bewegen, wat sommige Frans-Belgische
kanaalschepen en ook sommige zeilende zeeschepen bezaten, moet toen ontstaan zijn.

De kruiskoppeling bij een zijschroef. (In ruststand.)
Teneinde de kruiskoppeling niet al te veel te belasten kan de 'haakse-overbrenging' een weinig gekanteld, en dus in één lijn met de schroefas geplaatst worden.
Foto: Pieter Klein. Vreeswijk, oktober 2010. (
groter formaat)
Het zwakste punt bij een zijschroef is de kruiskop. Daarop mag feitelijk geen druk komen! Bij een zijschroef is dat echter wel het geval. Maar omdat er bij een zijschroef maar weinig vermogen, (drukkracht) op komt en reparatie gemakkelijk en tegen lage kosten kan worden uitgevoerd, was dat nog wel te doen.
Om die druk dus over te brengen op de
fundatie en niet op de kruiskop bedacht schipper Janssen dat daarvoor de
schroefas met een stevig stuwdruklager en een stevige dikwandige
schroefaskoker als één geheel scharnierend aan de motorfundatie moest komen.
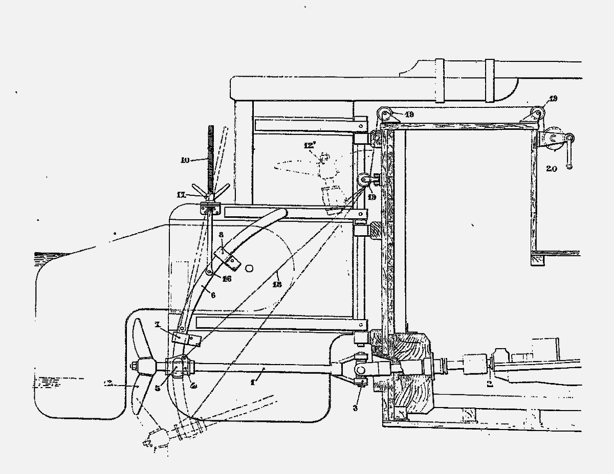
De Uitvoering
De schroefaskoker is aan de schroefzijde afgesloten met een
glandbus en aan de motorzijde met een binnengland (
glandpakkingbus).
De schroefaskoker is aan de motorzijde voorzien van twee zware, aan de zijkanten van de buis gelaste, armen waarmee het geheel scharnierend aan de fundatie bevestigd is. Tussen de armen zit het druklager met daarvoor, precies ter hoogte van dit scharnierpunt, een kruiskoppeling. Alle druk- en trekkrachten die de schroef op de schroefas kan uitoefenen worden via het druklager en de armen over gebracht op de fundatie. Deze krachten werken dus niet door op de kruiskoppeling. De levensduur van de kruiskoppeling wordt daardoor aanzienlijk verlengd.
De schroefaskoker zelf zit voor een groot gedeelte in een langsscheepse uitsparing, een soort
bun, in het
achterschip. Aan de voorzijde van de bun zit een opening waardoor de koker het schip binnengaat. Dit gat is dermate ruim dat het achteruiteinde van de schroefas, en daarmee de schroef, een zestig centimeter op en neer kan.
De lengte van de bun is een meter of zes. Het gedeelte van de schroefas binnen het schip, dus van gat in de bun naar kruiskoppeling, is niet meer dan 1,5 meter. Als het achteruiteinde van de schroefaskoker een zestig centimeter kan bewegen dan is dat aan de voorzijde van de bun dus nog maar een beweging van twaalf centimeter. [60 x (1500/(6000+1500))]
Het gedeelte van de koker binnen het schip is voor een deel omgeven door een ruime buis van gewapend rubber zoals men dat ook voor zandzuigleidingen gebruikt. Het voorste uiteinde van deze buis zit aan een kraag rond de schroefaskoker. Het achteruiteinde zit aan een flens die op de opening van de bun aangebracht is. Zo bereikt men een perfecte afdichting van de romp, terwijl er genoeg ruimte voor het hoger en lager stellen van de schroefaskoker over blijft.
De afstand tussen bun en de kraag op de schroefaskoker en daarmee de lengte van het rubberen deel is ongeveer een meter. De vertikale beweging van de schroefaskoker ter hoogte van de kraag waaraan deze rubberen koker vast zit is daardoor niet meer dan 4cm [60 x (500/(6000+1500))] Deze beweging vormt geen enkel probleem voor hut rubberen koppelstuk.
Aan de achterzijde van de bun, dus aan de schroefzijde van de koker, zit deze in een stevige, nagenoeg spelingsvrije geleiding in de vorm van een beugel. Binnen deze geleiding kan de koker ongeveer 60 cm vertikaal op en neer bewegen. In de bovenste stand ligt de schroefas min of meer horizontaal en heb je de situatie zoals bij een "normale" motorisatie.
Heeft men voldoende water onder de kiel dan kan men, naar behoefte, de schroef een eindje lager stellen.
Het uiteinde van de schroefaskoker wordt middels een hydraulische cilinder, die vertikaal in het achterschip opgesteld is en waterdicht door de
huid gevoerd wordt, op en neer bewogen.
Wanneer je achter het schip gaat staan dan ziet het er ongeveer ongeveer zo uit.
Het financiële risico en enkele negatieve adviezen waren voor schipper Janssen de reden waarom het systeem uiteindelijk toch niet in de Jolles is toegepast.
Toen echter ruim tien jaren later de Gebroeders Oldenhage de Louisa in hun bezit kregen, werd het idee weer van stal gehaald en toegepast. Dat het een prima idee was blijkt uit het feit dat het, zelfs met toepassing van een motor van 300 pk, en later zelfs 816pk, 40 jaar lang, namelijk tot de sloop van het schip bij Treffers in Haarlem, gewerkt heeft.
Na de Louisa volgde nog een tweede schip de kempenaar Corry (eni 02000305) met ook bijna 300 pk motorvermogen.
Dat de Gebr. Oldenhage zelf de eigenaren waren van de Louisa en de Corry zal een rol gespeeld hebben bij het feit dat zij het financiële risico aandurfden.

De klipper Jolles in 1976. Het schip vaart tot op de dag van vandaag (dec.2019) met een gewone traditionele schroefasopstelling.
Foto: collectie Th. Janssen. (
groter formaat)
Zoals met alles had ook dit systeem voor- en nadelen.
Maar in de praktijk waren de voordelen talrijker dan de nadelen.
Er was een klein nadeel in de konstructie, als de schroef in de lage stand stond, ging een deel van het schroefwater onder de roeren door. Daar was wel mee te leven, want m/s Corrie had ook met leeg schip een geweldige achteruit. Er was nog een pluspunt met de schroef in de hoge stand bij leeg schip ,even vuil of plastic enz uit de schroef verwijderen ,was zo gebeurd.
Schreef 'Klipper'
Het aller grootste voordeel was ongetwijfeld de rust in woning en
stuurhut, die op de Louisa achterop, dus boven de schroef stond. Waar je op andere
motorschepen toch altijd het gerammel van de schroef in de
tunnel hebt, heerste hier absolute rust. Waar we aanvankelijk dachten dat de schroef of boven, of onder, klem moest zitten in de beugel, bleek al gauw dat hij ook prima ergens halverwege kon staan.
De Louisa was een vlak schip dus je had altijd in de kanalen en zijrivieren altijd wat diepgang over.
Het verschil tussen bovenin, of 20 cm laten zakken was in de stuurhut een verschil van dag en nacht wat geluid betrof. Als de schroef bovenin stond, hoorde je de uitlaat voor de roef niet. Liet je hem 20 cm zakken dan verdween het gerammel "onder de
kont" en hoorde je de brom van de uitlaat, maar dat was een stuk minder irritant.
Een nadeel was wel dat bij varen met klein vaarwater de schroef niet diep genoeg kon om goed te "pakken" had je een maal en gangetje dan ging het wel, maar dat was niet fijn.
Een ander nadeel was dat in de Bovenrijn als er geklommen moest worden, de schroef weinig stuwkracht had omdat het water niet gericht werd door een tunnel of straalbuis.
Schreef 'Kapitein Spok'

Een Frans patent uit 1929 (patent nr 692.961) toont aan dat in diepte verstelbare schroeven allang een onderwerp was
dat op de tekentafels de nodige aandacht kreeg.
Bron. https://nl.espacenet.com/ (
groter formaat)
Sitemap
© 1997-heden; Pieter Klein, Amsterdam of de rechthebbenden van de opgenomen tekst- en afbeeldingsbestanden
De rechthebbenden kunnen niet aansprakelijk gesteld worden voor de gevolgen van het gebruik van deze site,
noch voor de gevolgen van het gebruik van de in deze site opgenomen links!
Deze site gebruikt cookies!
Zonder toestemming vooraf, is gehele of gedeeltelijke overname van enig deel uit 'Binnenvaarttaal' verboden!
Veel inzenders zullen echter een verzoek tot het (her)gebruik van het getoonde materiaal inwilligen. (meer informatie)
Kopieën naar Facebook, Pinterest, en andere doorgeefluiken zijn echter niet toegestaan!
Deze site is geoptimaliseerd voor een resolutie van 1024x768 px.,
U wordt verzocht eventuele gebreken te
melden!
(meer informatie)
Mijn dank gaat uit naar ALLEN, die mij met deze site helpen of geholpen hebben.
Pieter Klein:
Redacteur, auteur, ontwerper en webmaster.