Aanvullingen en correcties zijn welkom.
mvs 'Randwijk'
Deel 9: Plattegronden.
Deel:
1,
2,
3,
4,
5,
6,
7,
8,
inhoudsopgave.
- Voorsteven 40 x 120 mm.
- Luik ballasttank.
- Voorpiekluik.
- Kachelpijp vooronder.
- Dekglazen.
- Kolenfornuis met daarnaast het aanrecht.
- Koning van de zwaaiboom.
- Halfronde afwerking.
- Hemellichten/lichtkappen.
- Verhaalrollen.
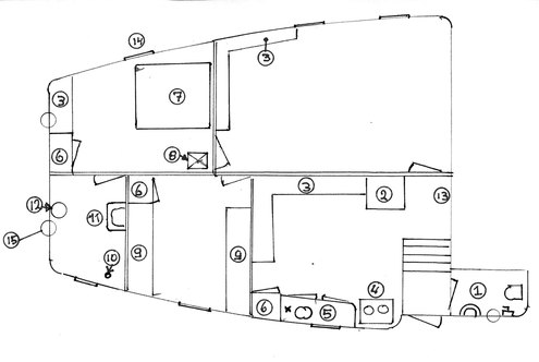
Rechtsachter in de roef de 'natte ruimte' met toilet.
- Kettingbakken.
- Oliekachel (1961).
- Opklapbed.
- Kasten.
- Zitbank (vast).
- 2 kooien.
- Patrijspoort.
- Toilet met wastafel.
- Vaste kast 1,2m hoog, met lade en deur.
- Vaste banken.
- Kolenfornuis, maar 's zomers butagasstel.
- Aanrecht met gootsteen.
- Vaste kasten.
- Vast bed.
- Vloerluik naar hel/kruipruimte.
- Tweemaal twee kooien boven elkaar.
- Lozing naar machinekamer.
- Wastafeltje.
- Geiser op butagas.
- Huistelefoon naar stuurhut.
- Schuiframen.
- Patrijspoorten.

Globale indeling van de
machinekamer. Op gangboordniveau bevond zich achter in de machinekamer
een bordes (lichtgrijs) met trap naar beneden.
- Luchttanks, twee aan elke kant onder het gangboord.
- Hydrofoorinstallatie.
- Oliegestookte verwarmingsketel.
- Hulpgenerator met 4 V-snaren gekoppeld aan de SB-motor.
- Bolnesmotoren met Brevo-keerkoppeling. Aan SB een rechtsom
draaiende motor, aan BB een linkse.
- Generator/compressorset met Kromhout 4 LS.
- Onderdelen bergplaats.
- Gasolietank 11 m³ met daarboven accubak 110/120 V.
- Hoofdschakelkast 110V tegen voorkant van de tank.
- Gasolietank 11 m³ met daarboven de smeerolietank.
Bordes langs bovenzijde tanks met traptreden tegen tank 10 maakt aftap
en peilglas smeerolietank alsmede de pomp voor de dieseloliedagtank
bereikbaar.
- Verf en vetten bergplaats.
- Afsluiter en wierbak (ook aan SB).
- Pompverdeelkast/zeekast.
- Dienstpomp (lens en ballastpomp).

- Kast met lade aan onderzijde.
- Bed; eronder twee laden en een bergplaats.
- Patrijspoorten.
- Vastebank met lade eronder.
- Verwarmingsradiator.
- Wastafel.
- Schuifraampjes (heel-zakkend?)
De hutten onder de brug waren bedoeld voor passagiers of de loodsen. De
ruimtes bezaten geen kookgelegenheid of sanitair. De passagiers waren
meestal gasten van de rederij.
Deel:
1,
2,
3,
4,
5,
6,
7,
8.
Sitemap
© 1997-heden; Pieter Klein, Amsterdam of de rechthebbenden van de opgenomen tekst- en afbeeldingsbestanden
De rechthebbenden kunnen niet aansprakelijk gesteld worden voor de gevolgen van het gebruik van deze site,
noch voor de gevolgen van het gebruik van de in deze site opgenomen links!
Deze site gebruikt cookies!
Zonder toestemming vooraf, is gehele of gedeeltelijke overname van enig deel uit 'Binnenvaarttaal' verboden!
Veel inzenders zullen echter een verzoek tot het (her)gebruik van het getoonde materiaal inwilligen. (meer informatie)
Kopieën naar Facebook, Pinterest, en andere doorgeefluiken zijn echter niet toegestaan!
Deze site is geoptimaliseerd voor een resolutie van 1024x768 px.,
U wordt verzocht eventuele gebreken te
melden!
(meer informatie)
Mijn dank gaat uit naar ALLEN, die mij met deze site helpen of geholpen hebben.
Pieter Klein:
Redacteur, auteur, ontwerper en webmaster.